






Neubau Gartenwohnung
Objekt: Wohnung zum Kauf
Standort: 83435 Bad Reichenhall
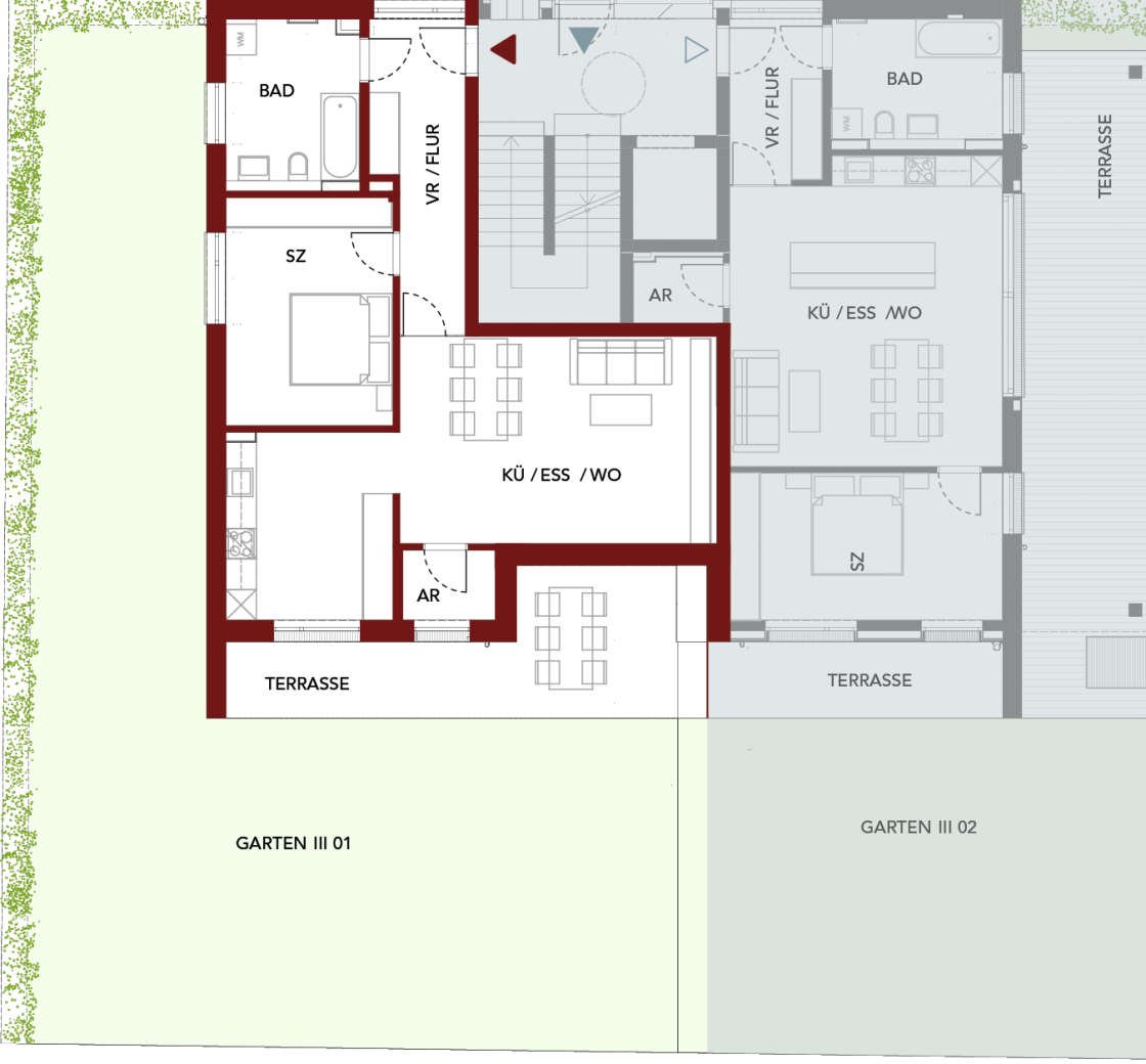
Diese zauberhafte 2-Zimmer-Erdgeschosswohnung mit Terrasse und Gartensondernutzungsrecht befindet sich im Haus 3.
Auf ca. 74m² reiner Wohnfläche erwarten Sie ein Tageslichtbad mit Dusche und Badewanne, ein großer Wohn/Koch-und Essbereich mit ca. 40m² und ein gut geschnittenes Schlafzimmer. An die schöne, geschützte Terrasse schließt sich der Gartenbereich mit Sondernutzungsrecht an.
Die Wohnung ist barrierefrei erreichbar. Eine moderne und hochwertige Ausstattung erwartet Sie.
Haben wir Ihr Interesse geweckt?
Dann vereinbaren Sie einen gemeinsamen Termin mit uns.
info@kur-bau.de
oder 08651/ 76260-0
Weitere Daten
- Wohnungstyp: Terrassenwohnung (3.1)
- Etage: 0
- Etagenanzahl: 3
- Schlafzimmer: 1
- Badezimmer: 1
- Keller: Ja
- Balkon/Terrasse: Ja
- Garten/-mitbenutzung: Ja
- Personenaufzug: Ja
- Objektzustand: Erstbezug
- Baujahr: 2022
- Qualität der Ausstattung: Gehoben
- Energieausweistyp: Bedarfsausweis
- Heizungsart: Fußbodenheizung
- Wesentliche Energieträger: Holzpellets
- Baujahr laut Energieausweis: 2022
- Bezugsfrei ab: sofort
- Garage/Stellplatz: Tiefgarage
- Anzahl Garage/Stellplatz: 1
- Stufenloser Zugang: Ja
Kosten
Preis auf Anfrage
Lage
Zentrale und ruhige Lage von Bad Reichenhall. Die Fußgängerzone ist fußläufig in ein paar Minuten erreichbar.


